一、示意圖

二、控制要求
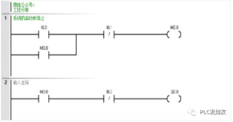
當按下啟動按鈕時,洗衣機啟動運轉;當按下停止按鈕時,洗衣機停止運轉。
三、元件說明
| PLC輸入及輔助軟元件 | 控制說明 |
| I0.0 | 洗衣機啟動和初始化按鈕,按下啟動時,I0.0 狀態由Off→On |
| I0.1 | 洗衣機停止按鈕按下停止時,I0.1 狀態由Off→On |
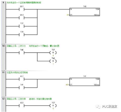
| I0.2 | 高水位傳感器,當水位到達高水位時,I0.2狀態由Off→On |
| T37 | 計時10s 定時器,時基為100ms的定時器 |
| T38 | 計時2s定時器,時基為100ms 的定時器 |
| T39 | 計時10s定時器,時基為100ms 的定時器 |
| T40 | 計時24s定時器,時基為100ms的定時器 |
| T41 | 計時48s定時器,時基為100ms的定時器 |
| T42 | 計時2s定時器,時基為100ms的定時器 |
| M0.0 | 內部輔助繼電器 |
| PLC輸出軟元件 | 控制說明 |
| Q0.0 | 電磁進水閥 |
| Q0.1 | 電動機正轉接觸器 |
| Q0.2 | 電動機反轉接觸器 |
四、控制程序

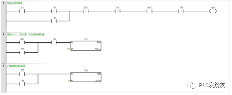
①按下啟動按鈕I0.0時,I0.0 得電,常開觸點閉合,M0.0 得電自鎖,洗衣機自動運行。此時,進水閥門Q0.0得電,洗衣機開始進水.

②當洗衣機內水位達到高水位后,I0.2 得電,常閉觸點斷開,Q0.0失電,進水閥門關閉; I0.2 常開觸點閉合,Q0.1 得電,洗衣機電動機正轉運行。由於Q0.1=On,則電動機運,行計時開始,經10s后,T37=On, Q0.1=Off,電動機停止正轉運行,同時,間歇計時開始,2s后,T38=On,Q0.2=On。

電動機反轉運行,同時反轉計時開始,10s 后,T39=On,電動機停止反轉運行。同時,間歇計時開始,2s后,T42=On,定時器T39失電
T40=On, RST指令被執行,T37 ~ T39、T40, T42被復位,且Q0.1=On,洗衣機正轉運行再次開始,並以此步驟循環運行

③循環時間為用戶自行設定的洗滌時間,梯形圖中以T41中的時間表示本案例假設為48s。當洗衣機到達高水位后,開始計時,達到設定的時間后,T41=On, 電動機停轉。
④I0.0 既為啟動開關,也為初始化開關,按下后,復位操作指令被執行,T37~ T42被復位。
(來源:網絡,版權歸原作者所有,侵刪)
